Alexander Wallender
VITA
- Bachelor of Arts Architektur
- Bachelor of Engineering Bauingenieurwesen
- Koordinator Nachhaltiges Bauen BNB, Listen Nr. 1024
- Mitglied der Bayerischen Ingenieurekammer-Bau, Listen Nr. 49370
- uneingeschränkt bauvorlageberechtigt nach BayBO Art. 61 Abs. 2 Nr. 2 und Abs. 5
- FHS Ingenieurbüro für Tragwerksplanung und Denkmalpflege
- HAID + PARTNER Architekten und Ingenieure
- Cadolto Modulbau GmbH
- kleyer.koblitz.letzel.freivogel Architekten
PROJEKTE
49.452765, 11.071512






49.395787, 10.695928









49.435221, 10.984440


49.032863, 10.968974






49.462394, 11.079701







49.455720, 10.853342



30.085375, -97.144050


49.449830, 11.060175









49.462781, 11.078650

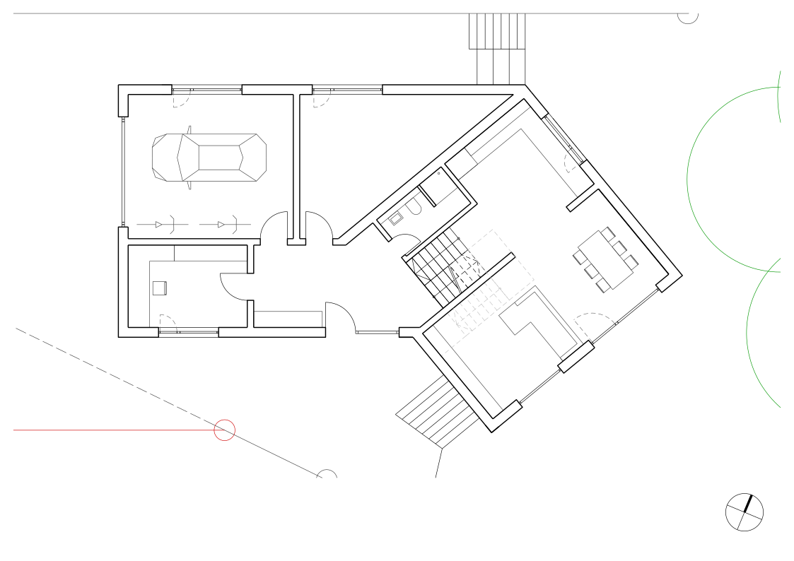
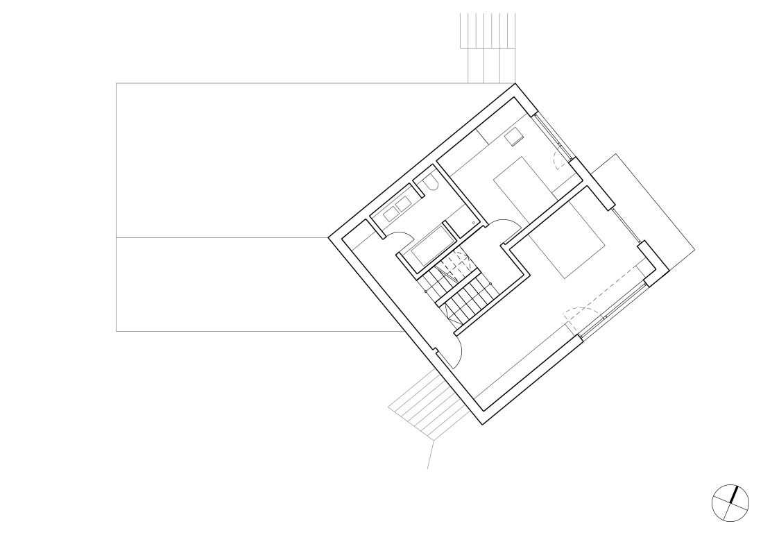
- Neubau Aussegnungshalle Obermichelbach
- Architektur- und Investorenwettbewerb Wöhrder See Café
- Modulbau Bürogebäude X-FAB MEMS Itzehohe
- Modulbau Sparkasse Geschäftsstelle Stadion Fürth
- Erweiterungsbau Realschule Au in der Hallertau
- Neubau Kindergarten Markt Neunkirchen a. Brand
- Energetische Sanierung Landesamt für Steuern IuK Campus Nürnberg
- Gestaltungskonzept Ehrenhof Landesbaudirektion Bayern
- Gestaltungskonzept Kantinengebäude ehem. Oberfinanzdirektion Nürnberg
- denkmalgerechte und schutzzielorientierte Brandschutzsanierung Ämtergebäude Krelingstraße Nürnberg
- denkmalgerechte Modernisierungsmaßnahmen Bundesamt für Migration und Flüchtlinge Nürnberg
- denkmalgerechte Instandsetzungsmaßnahmen Hauptzollamt Nürnberg und Zollfahndungsamt München
- Umgestaltung Servicezentrum Finanzamt Hersbruck
- multifunktionales IT-Labor Generalzolldirektion Nürnberg
- Planung und Durchführung Elektroladeinfrastruktur ehem. Südkaserne Nürnberg
SCHWERPUNKTE
- Machbarkeitsstudien für experimentelles und innovatives Bauen
- Formulierung von isolierten baurechtlichen Abweichungen, Ausnahmen und Befreiungen
- Planung und Durchführung von Bauaufgaben nach RLBau und RBBau
- tokenisierte und blockchainbasierte Projektentwicklung im Wohnungsbau
IMPRESSUM
Impressum/ Datenschutzerklärung
Mitglied der Bayerischen Ingenieurekammer-Bau Mitglieds-Nr. 49370
Die Berufsbezeichnung Ingenieur gem. Art.1 Abs.1 Nr.1a IngG (BayRS V, S.6) wurde in der Bundesrepublik Deutschland verliehen. Es gilt die Honorarordnung für Architekten und Ingenieure (HOAI) sowie die Berufsordnungen und berufsrechtlichen Regelungen für Ingenieure der Bayerischen Ingenieurekammer-Bau. Weitere Informationen finden Sie auf der Seite der Bayerischen Ingenieurekammer-Bau.
Grafisches Konzept und Webrealisierung: Alexander Wallender
Urheberschutz
Der Inhalt dieser Webseite ist urheberrechtlich geschützt. Jede Art der Vervielfältigung, Bearbeitung, Verbreitung Einspeicherung und jede Art der Verwertung der hier bereit gestellten Informationen und Fotos bedarf der vorherigen schriftlichen Genehmigung. Die Inhalte des Internetauftritts wurden mit größtmöglicher Sorgfalt und nach bestem Gewissen erstellt. Dennoch übernimmt der Anbieter dieser Webseite keine Gewähr für die Aktualität, Vollständigkeit und Richtigkeit der bereitgestellten Seiten und Inhalte. Soweit die Inhalte auf dieser Seite nicht vom Betreiber erstellt wurden, werden die Urheberrechte Dritter beachtet. Insbesondere werden Inhalte Dritter als solche gekennzeichnet. Sollten Sie trotzdem auf eine Urheberrechtsverletzung aufmerksam werden, bitte ich um einen entsprechenden Hinweis. Bei Bekanntwerden von Rechtsverletzungen werde ich derartige Inhalte umgehend entfernen. Der Nutzung von im Rahmen der Impressumspflicht veröffentlichten Kontaktdaten durch Dritte zu Übersendung von nicht ausdrücklich angeforderter Werbung und Informationsmaterialien wird hiermit ausdrücklich widersprochen. Die Betreiber der Seiten behalten sich ausdrücklich rechtliche Schritte im Falle der unverlangten Zusendung von Werbeinformationen, etwa durch Spam-Mails, vor.
Haftungsausschluss
Herr Alexander Wallender ist nicht verantwortlich für die Inhalte externer Internetseiten. Bei direkten oder indirekten Verweisen auf fremde Internetseiten (“Links”), die außerhalb des Verantwortungsbereiches von Herrn Alexander Wallender liegen, tritt eine Haftungsverpflichtung ausschließlich in dem Fall ein, in dem Herr Alexander Wallender von den fremden Inhalten Kenntnis hat und es ihm technisch möglich und zumutbar wäre, die Nutzung im Falle rechtwidriger Inhalte zu verhindern. Herr Alexander Wallender hiermit ausdrücklich, dass zum Zeitpunkt der Linksetzung die entsprechenden verlinkten Seiten frei von illegalen Inhalten waren. Auf die aktuelle und zukünftige Gestaltung, die Inhalte oder die Urheberschaft der gelinkten/verknüpften Seiten hat Herr Alexander Wallender keinerlei Einfluss. Er distanziert sich daher ausdrücklich von allen Inhalten aller gelinkten/ verknüpften Seiten, die nach der Linksetzung verändert wurden. Diese Feststellung gilt für alle innerhalb des eigenen Internetangebotes gesetzten Links und Verweise. Für illegale, fehlerhafte oder unvollständige Inhalte und insbesondere für Schäden, die aus der Nutzung oder Nichtnutzung solcher Art dargebotener Informationen entstehen, haftet allein der Anbieter der Seite, auf welche verwiesen wurde. Die Europäische Kommission bietet eine Plattform zur Online-Streitbeilegung an, die hier zu finden ist: https://ec.europa.eu/consumers/odr.
Herr Alexander Wallender ist weder bereit noch verpflichtet, an Streitbeilegungsverfahren vor Verbraucherschlichtungsstellen teilzunehmen.
Datenschutzerklärung
Personenbezogene Daten (nachfolgend zumeist nur „Daten“ genannt) werden von uns nur im Rahmen der Erforderlichkeit sowie zum Zwecke der Bereitstellung eines funktionsfähigen und nutzerfreundlichen Internetauftritts, inklusive seiner Inhalte und der dort angebotenen Leistungen, verarbeitet.
Gemäß Art. 4 Ziffer 1. der Verordnung (EU) 2016/679, also der Datenschutz-Grundverordnung (nachfolgend nur „DSGVO“ genannt), gilt als „Verarbeitung“ jeder mit oder ohne Hilfe automatisierter Verfahren ausgeführter Vorgang oder jede solche Vorgangsreihe im Zusammenhang mit personenbezogenen Daten, wie das Erheben, das Erfassen, die Organisation, das Ordnen, die Speicherung, die Anpassung oder Veränderung, das Auslesen, das Abfragen, die Verwendung, die Offenlegung durch Übermittlung, Verbreitung oder eine andere Form der Bereitstellung, den Abgleich oder die Verknüpfung, die Einschränkung, das Löschen oder die Vernichtung. Mit der nachfolgenden Datenschutzerklärung informieren wir Sie insbesondere über Art, Umfang, Zweck, Dauer und Rechtsgrundlage der Verarbeitung personenbezogener Daten, soweit wir entweder allein oder gemeinsam mit anderen über die Zwecke und Mittel der Verarbeitung entscheiden. Zudem informieren wir Sie nachfolgend über die von uns zu Optimierungszwecken sowie zur Steigerung der Nutzungsqualität eingesetzten Fremdkomponenten, soweit hierdurch Dritte Daten in wiederum eigener Verantwortung verarbeiten.
Unsere Datenschutzerklärung ist wie folgt gegliedert:
I. Informationen über uns als Verantwortliche
II. Rechte der Nutzer und Betroffenen
III. Informationen zur Datenverarbeitung
I. Informationen über uns als Verantwortliche
Verantwortlicher Anbieter dieses Internetauftritts im datenschutzrechtlichen Sinne ist:
Alexander Wallender
II. Rechte der Nutzer und Betroffenen
Mit Blick auf die nachfolgend noch näher beschriebene Datenverarbeitung haben die Nutzer und Betroffenen das Recht
– auf Bestätigung, ob sie betreffende Daten verarbeitet werden, auf Auskunft über die verarbeiteten Daten, auf weitere Informationen über die Datenverarbeitung sowie auf Kopien der Daten (vgl. auch Art. 15 DSGVO);
– auf Berichtigung oder Vervollständigung unrichtiger bzw. unvollständiger Daten (vgl. auch Art. 16 DSGVO);
– auf unverzügliche Löschung der sie betreffenden Daten (vgl. auch Art. 17 DSGVO), oder, alternativ, soweit eine weitere Verarbeitung gemäß Art. 17 Abs. 3 DSGVO erforderlich ist, auf Einschränkung der Verarbeitung nach Maßgabe von Art. 18 DSGVO;
– auf Erhalt der sie betreffenden und von ihnen bereitgestellten Daten und auf Übermittlung dieser Daten an andere Anbieter/Verantwortliche (vgl. auch Art. 20 DSGVO);
– auf Beschwerde gegenüber der Aufsichtsbehörde, sofern sie der Ansicht sind, dass die sie betreffenden Daten durch den Anbieter unter Verstoß gegen datenschutzrechtliche Bestimmungen verarbeitet werden (vgl. auch Art. 77 DSGVO).
Darüber hinaus ist der Anbieter dazu verpflichtet, alle Empfänger, denen gegenüber Daten durch den Anbieter offengelegt worden sind, über jedwede Berichtigung oder Löschung von Daten oder die Einschränkung der Verarbeitung, die aufgrund der Artikel 16, 17 Abs. 1, 18 DSGVO erfolgt, zu unterrichten. Diese Verpflichtung besteht jedoch nicht, soweit diese Mitteilung unmöglich oder mit einem unverhältnismäßigen Aufwand verbunden ist. Unbeschadet dessen hat der Nutzer ein Recht auf Auskunft über diese Empfänger.Ebenfalls haben die Nutzer und Betroffenen nach Art. 21 DSGVO das Recht auf Widerspruch gegen die künftige Verarbeitung der sie betreffenden Daten, sofern die Daten durch den Anbieter nach Maßgabe von Art. 6 Abs. 1 lit. f) DSGVO verarbeitet werden.
III. Informationen zur Datenverarbeitung
Ihre bei Nutzung unseres Internetauftritts verarbeiteten Daten werden gelöscht oder gesperrt, sobald der Zweck der Speicherung entfällt, der Löschung der Daten keine gesetzlichen Aufbewahrungspflichten entgegenstehen und nachfolgend keine anderslautenden Angaben zu einzelnen Verarbeitungsverfahren gemacht werden.
Serverdaten
Aus technischen Gründen, insbesondere zur Gewährleistung eines sicheren und stabilen Internetauftritts, werden Daten durch Ihren Internet-Browser an uns bzw. an unseren Webspace-Provider übermittelt. Mit diesen sog. Server-Logfiles werden u.a. Typ und Version Ihres Internetbrowsers, das Betriebssystem, die Website, von der aus Sie auf unseren Internetauftritt gewechselt haben (Referrer URL), die Website(s) unseres Internetauftritts, die Sie besuchen, Datum und Uhrzeit des jeweiligen Zugriffs sowie die IP-Adresse des Internetanschlusses, von dem aus die Nutzung unseres Internetauftritts erfolgt, erhoben. Diese so erhobenen Daten werden vorrübergehend gespeichert, dies jedoch nicht gemeinsam mit anderen Daten von Ihnen. Diese Speicherung erfolgt auf der Rechtsgrundlage von Art. 6 Abs. 1 lit. f) DSGVO. Unser berechtigtes Interesse liegt in der Verbesserung, Stabilität, Funktionalität und Sicherheit unseres Internetauftritts. Die Daten werden spätestens nach sieben Tage wieder gelöscht, soweit keine weitere Aufbewahrung zu Beweiszwecken erforderlich ist. Andernfalls sind die Daten bis zur endgültigen Klärung eines Vorfalls ganz oder teilweise von der Löschung ausgenommen.
Cookies
Es werden beim Besuch der Webseite keine Cookies auf Ihrem Rechner gespeichert.
Vertragsabwicklung
Die von Ihnen zur Inanspruchnahme unseres Dienstleistungsangebots übermittelten Daten werden von uns zum Zwecke der Vertragsabwicklung verarbeitet und sind insoweit erforderlich. Vertragsschluss und Vertragsabwicklung sind ohne Bereitstellung Ihrer Daten nicht möglich. Rechtsgrundlage für die Verarbeitung ist Art. 6 Abs. 1 lit. b) DSGVO. Wir löschen die Daten mit vollständiger Vertragsabwicklung, müssen dabei aber die steuer- und handelsrechtlichen Aufbewahrungsfristen beachten. Im Rahmen der Vertragsabwicklung geben wir Ihre Daten an das mit der Warenlieferung beauftragte Transportunternehmen weiter, soweit die Weitergabe zur Warenauslieferung erforderlich ist. Rechtsgrundlage für die Weitergabe der Daten ist dann Art. 6 Abs. 1 lit. b) DSGVO.
Kontaktanfragen / Kontaktmöglichkeit
Sofern Sie per E-Mail mit mir in Kontakt treten, werden die dabei von Ihnen angegebenen Daten zur Bearbeitung Ihrer Anfrage genutzt. Die Angabe der Daten ist zur Bearbeitung und Beantwortung Ihre Anfrage erforderlich – ohne deren Bereitstellung können wir Ihre Anfrage nicht oder allenfalls eingeschränkt beantworten. Rechtsgrundlage für diese Verarbeitung ist Art. 6 Abs. 1 lit. b) DSGVO. Ihre Daten werden gelöscht, sofern Ihre Anfrage abschließend beantwortet worden ist und der Löschung keine gesetzlichen Aufbewahrungspflichten entgegenstehen, wie bspw. bei einer sich etwaig anschließenden Vertragsabwicklung.
Alexander Wallender
Hindenburgstraße 22
90556 Cadolzburg
Deutschland
E-Mail: a.wallender[at]me.com
© copyright Alexander Wallender